Three-Storey Villa with Two Pools
🏡 General Information
Presenting an extraordinary three-storey villa that redefines tropical luxury in the heart of Canggu. With a total building area of 263 sqm set on a 224 sqm land parcel, this residence offers expansive indoor-outdoor living across multiple levels, featuring the rare luxury of two private swimming pools. Part of the exclusive AQUAMARINE I project, it sits in Canggu — Bali’s most vibrant coastal neighborhood, world-famous for its legendary surf breaks, trendy cafes, boutique shopping, rice terrace views, and breathtaking sunsets.
📐 Layout & Premium Features
The villa’s three-storey design creates distinct zones for living, sleeping, and entertaining:
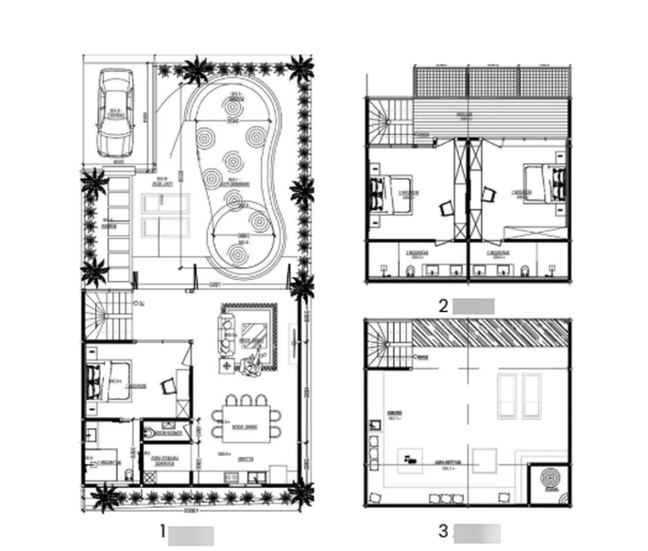
Ground Floor:
🛋 An expansive open-plan living and dining area flowing seamlessly toward the outdoors;
🍳 A modern, fully equipped kitchen with premium appliances;
🛏 One guest bedroom with private ensuite bathroom;
🚻 A convenient powder room for visitors;
🌿 Direct access to the main swimming pool and tropical garden.
First Floor:
🛏 Two generously sized bedrooms, each featuring private ensuite bathrooms and walk-in wardrobes;
🌅 Private balconies capturing cooling ocean breezes and beautiful views;
📚 A dedicated working space or lounge area.
Top Floor/Rooftop Level:
🏝 Additional living or entertainment space with panoramic views.
Outdoor Paradise:
🏊♀️ A stunning main swimming pool surrounded by sun-drenched loungers;
🏊 A second private plunge pool — a rare feature offering ultimate flexibility for relaxation;
🌺 Lush tropical landscaping creating your private oasis;
🚗 Secure parking within the villa grounds.
Large windows invite abundant natural light and cooling ocean breezes throughout. Premium finishes ensure durability in the tropical climate while maintaining an elegant, contemporary aesthetic. The thoughtful multi-level design ensures privacy between living and sleeping zones.
👨👩👧 Perfect For
👪 Families with children — The villa’s spacious layout across three floors provides room for everyone. Children will love the two pools, while parents appreciate the separate living zones. Canggu is home to several excellent international schools (including Canggu Community School and Montessori School Bali) within easy reach, making it ideal for long-term family living.
🏄♂️ Surfers, digital nomads, and discerning travelers — Located moments from Canggu’s legendary surf breaks (Echo Beach, Batu Bolong, Berawa) and famous beach clubs (La Brisa, The Lawn, Finns), you’re perfectly positioned to experience the best of Bali. After days of adventure, return to your private sanctuary with the rare luxury of two pools.
📈 Investors seeking exceptional returns — Villas with two pools in prime Canggu locations represent the pinnacle of Bali’s luxury rental market, commanding premium nightly rates for large groups and multi-family vacations. Canggu’s consistently high tourist demand and limited supply of quality villas ensure strong occupancy and outstanding capital growth potential.
📍 Additional Details
The villa enjoys a prime position within the secure AQUAMARINE I development, offering privacy and a sense of community. Surrounding infrastructure is world-class:
🏖 Canggu beaches (Echo, Batu Bolong, Berawa) just minutes away;
🍴 World-class cafes, restaurants, and beach clubs within easy reach;
🛒 Local convenience stores, supermarkets (Pepito), and boutiques nearby;
🏫 International schools and medical facilities accessible;
✈️ Ngurah Rai International Airport approximately 45 minutes away.
Everything you need for the ultimate Canggu lifestyle is right at your doorstep — world-class surf, vibrant culture, exceptional dining, and peaceful tropical living in a villa with the rare luxury of two pools.
This is more than a villa — it’s a trophy property. A magnificent three-storey residence where dual pools, multiple living zones, and sophisticated design come together to create your private paradise in Canggu.
Ready to own this exceptional Canggu estate? Simply leave a request on our website or send us a message on WhatsApp — we’ll provide a complete presentation with floor plans, pricing, and exclusive investment opportunities for this remarkable trophy property! 🌊🏝️✨















