Tropical Two-Story Villa with Pool
🏡 General Info:
This is a beautifully designed 2-bedroom private villa spread across two floors, with a total building size of approximately 100 m² of thoughtfully planned living space. Located within the UBUD RE:IMAGINED VILLAS in Bali, Ubud, it sits in the island’s cultural heart—surrounded by lush jungle, emerald rice terraces, and the serene, spiritual atmosphere that makes Ubud a world‑renowned destination.
📐 Layout & Advantages:
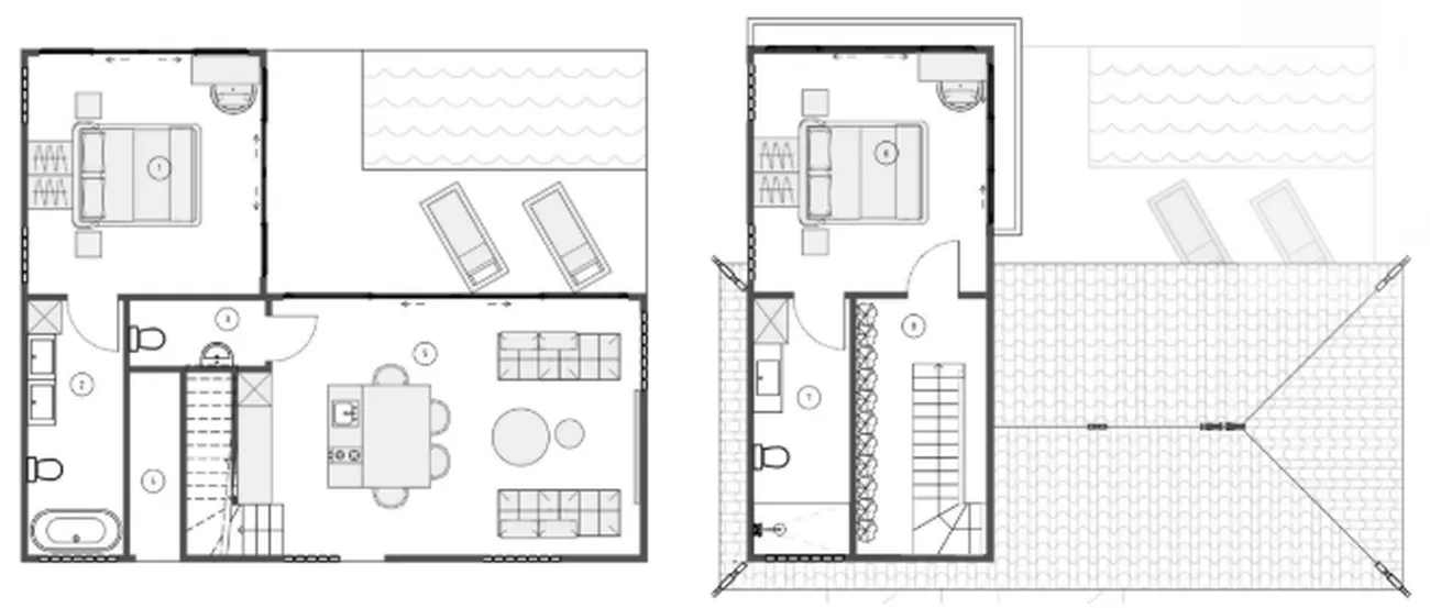
The villa features two spacious bedrooms (each 17.22 m²), both with their own en‑suite bathrooms (master bath 7.68 m², second bath 7.65 m²), plus a guest powder room (2.81 m²) for added convenience. A pantry/storage area (7.90 m²) keeps everyday essentials neatly tucked away. The ground floor offers an open‑plan kitchen and living area (31.19 m²) that flows seamlessly onto a private swimming pool and sun terrace. Upstairs, a landing area (10.11 m²) connects the two bedrooms, creating a natural separation between social spaces below and quiet sleeping quarters above. Large windows and glass doors invite natural light and cooling tropical breezes throughout, offering a perfect balance of privacy and openness.
👨👩👧 Perfect For:
👪 Families with children — Two bedrooms and a private pool provide a safe, spacious environment for young families. Ubud’s international schools, family‑friendly cafés, and peaceful surroundings make it an ideal place to call home.
✈️ Tourists & holidaymakers — This villa appeals to groups or small families seeking an authentic Ubud experience. Its proximity to yoga studios, cultural landmarks, and the vibrant Ubud dining scene ensures strong rental demand and premium rates.
📈 Investors — Ubud’s property market remains resilient, with consistent demand from both long‑term renters and holiday guests. A well‑appointed two‑bedroom villa with a pool in this prime location offers excellent liquidity, attractive yields, and steady capital growth.
📍 Additional Info:
The villa is part of a new development, giving early investors a strategic foothold in one of Bali’s most culturally rich and stable areas. You’ll find local markets, art galleries, renowned restaurants, and the iconic Ubud Palace all within a short scooter ride. While construction is underway, securing this villa now positions you for future value appreciation.
📲 Ready to own this tropical Ubud sanctuary? Leave a request on our website or reach out via WhatsApp—we’ll share all the details and help you take the next step.














