Sprawling Three-Bedroom Jungle Villa
🏡 General Info:
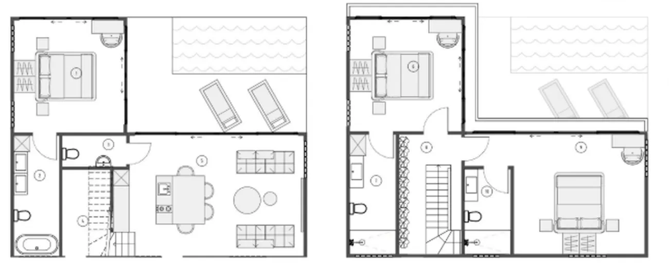
This is a spacious 3-bedroom private villa spread across two floors, with a total building size of 130 m² thoughtfully designed for modern tropical living. Located within the UBUD RE:IMAGINED VILLAS in Bali, Ubud, it sits in the island’s cultural heart—surrounded by lush jungle, emerald rice terraces, and the serene, spiritual atmosphere that makes Ubud a world‑renowned destination.
📐 Layout & Advantages:
The villa features three generously sized bedrooms, each with its own en‑suite bathroom. The master suite (17.22 m²) includes a private bath (7.68 m²), while the second bedroom (17.22 m²) and third bedroom (22.76 m²) offer flexibility for family or guests. A guest powder room (2.81 m²) adds convenience, and a pantry/storage area (5.90 m²) keeps essentials organized. The ground floor boasts an open‑plan kitchen and living area (31.19 m²) that flows seamlessly onto a private swimming pool and sun terrace. Upstairs, a landing area (9.66 m²) connects the bedrooms, creating a natural separation between social spaces below and quiet sleeping quarters above. Large windows and glass doors invite natural light and cooling tropical breezes throughout.
👨👩👧 Perfect For:
👪 Families with children — Three bedrooms and a private pool offer ample space for growing families. Ubud’s international schools, family‑friendly cafés, and peaceful surroundings make it an ideal setting for raising children.
✈️ Tourists & holidaymakers — This villa appeals to large families or groups seeking an authentic Ubud experience. Its proximity to yoga studios, cultural landmarks, and the vibrant Ubud dining scene ensures strong rental demand and premium rates.
📈 Investors — Ubud’s property market remains resilient, with consistent demand from both long‑term renters and holiday guests. A well‑appointed three‑bedroom villa with a pool in this prime location offers excellent liquidity, attractive yields, and steady capital growth.
📍 Additional Info:
The villa is part of a new development, giving early investors a strategic foothold in one of Bali’s most culturally rich and stable areas. You’ll find local markets, art galleries, renowned restaurants, and the iconic Ubud Palace all within a short scooter ride. While construction is underway, securing this villa now positions you for future value appreciation.
📲 Ready to own this sprawling Ubud sanctuary? Leave a request on our website or reach out via WhatsApp—we’ll share all the details and help you take the next step.














