Duplex Penthouse with Private Pool
Description:
🏡 General Information:
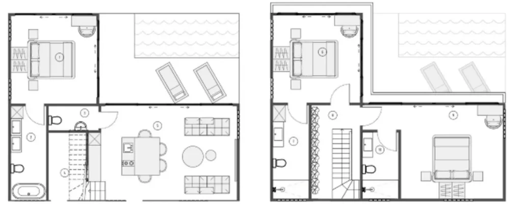
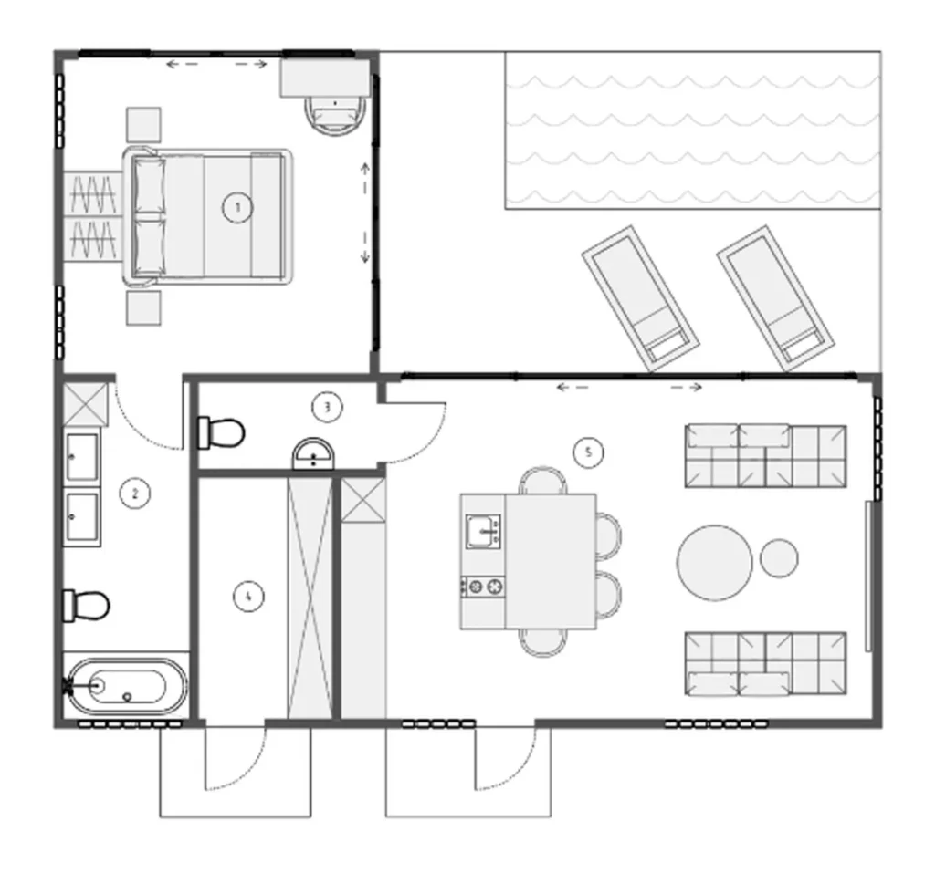
This is a spectacular three-bedroom penthouse located in the stylish SOHO BY PARQ complex in the heart of Uluwatu, Bali. Offering the ultimate in luxury living, this two-story residence features a total interior area of 92 sq.m. , thoughtfully designed across two levels with its own private swimming pool—a rare and extraordinary find in the Uluwatu market.
📐 Layout & Advantages:
The duplex penthouse is designed for both grand entertaining and comfortable family living.
-
First Floor: The main living level features an open-plan living and dining area that flows seamlessly towards the private swimming pool and terrace. This is the heart of the home—perfect for relaxing, entertaining, and enjoying indoor-outdoor tropical living. A modern kitchen and one bedroom with bathroom complete this level.
-
Second Floor: The upper level is dedicated to rest and privacy, hosting two well-appointed bedrooms, each with its own dedicated bathroom. This separation creates a peaceful sanctuary away from the living areas.
-
Advantages: With three bedrooms and three bathrooms, every family member or guest enjoys complete privacy. The first-floor pool creates a resort-style ambiance at your doorstep, while the two upstairs bedrooms offer tranquil retreats. Large windows throughout flood the interior with natural light, connecting seamlessly to the outdoor spaces.
👨👩👧 Perfect for:
-
Families with Children: The two-story layout provides natural separation between living and sleeping areas. Parents can enjoy the first-floor master suite while children have the upper level, or vice versa. The private pool offers safe, endless entertainment just steps from the living room. Uluwatu’s family-friendly cafes and beaches are moments away.
-
Entertainers & Lifestyle Buyers: This penthouse is made for those who love to host. The private pool and terrace become your exclusive venue for gatherings, while the generous interior offers style and comfort for everyday living.
-
Investors: Penthouses with private pools are among the rarest and most coveted properties in Uluwatu’s luxury rental market. This exceptional residence will command premium rates and attract discerning travelers, large groups, and families seeking something truly extraordinary.
📍 Additional Info:
SOHO BY PARQ is perfectly situated in vibrant Uluwatu, renowned for its dramatic cliff-top views, world-class surf breaks like Padang-Padang and Bingin, and a thriving collection of trendy cafes and restaurants. You’ll be moments away from the action while enjoying the elevated privacy and luxury of your own penthouse with private pool—a true standout in the Uluwatu market.
To get all the detailed information about this exceptional penthouse, simply leave a request on our website or write to us on WhatsApp.















