Частная вилла с одной спальней и бассейном
🏡 Общая информация:
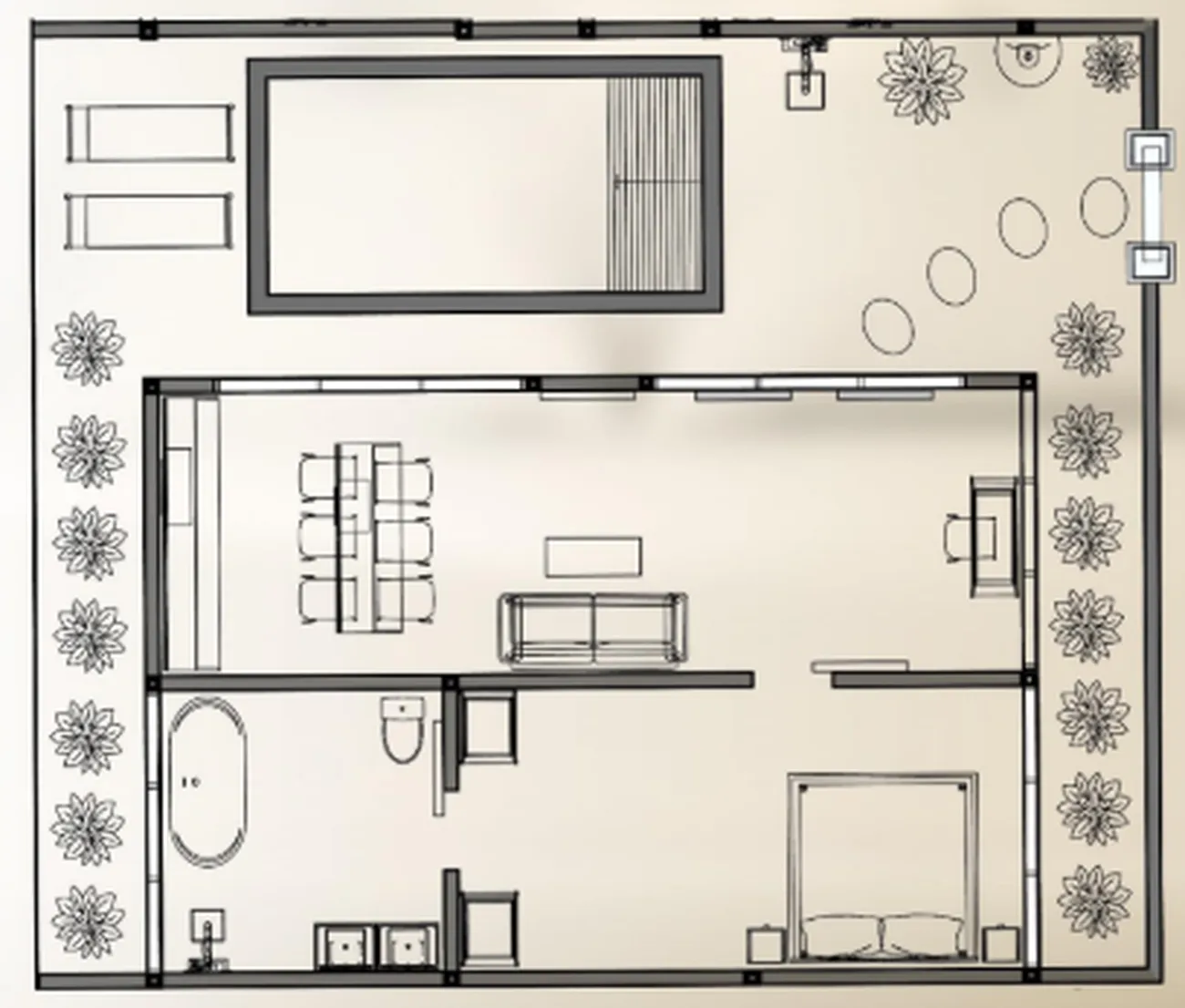
Это Частная вилла с 1 спальней с общей площадью территории 118 m²В здании, отличающемся хорошей планировкой, размер 60 m² и Частный плавательный бассейн площадью 12,5 м² (2,5 x 5 м). Находится в WHITE VILLAS в Бали, УлуватуОн расположен в одном из самых впечатляющих прибрежных районов острова, известном своими драматическими известняковыми скалами, прибоем мирового класса и спокойной, высококлассной атмосферой.
📐 Планировка и преимущества:
Вилла предлагает просторная спальня (18 м²), a просторная ванная комната (9 м²), и открытая планировка гостиная и кухня (27 м²), спроектированный для легкого перемещения из помещения на улицу. Большие стеклянные двери соединяют жилую зону непосредственно с террасой у бассейна, создавая плавный переход между отдыхом и релаксацией. Планировка обеспечивает максимальный комфорт и уединение, а также продуманное разделение спальной и общественной зон. Частный бассейн - идеального размера, чтобы охладиться или понежиться - добавляет в повседневную жизнь нотку курортного отдыха.
👨👩👧 Идеально подходит для:
👪 Семейные пары или небольшие семьи - Просторная спальня и частный бассейн создают безопасную и комфортную обстановку для молодой семьи. Международные школы и семейные кафе Улувату добавляют ему привлекательности.
✈️ Туристы и отдыхающие - Эта вилла привлекает взыскательных путешественников, ищущих уединения и стиля. Близость к знаменитым пляжам Улувату, местам для серфинга и ресторанам на вершине скалы обеспечивает высокий спрос на аренду и премиальные цены.
📈 Инвесторы - В Улувату продолжается устойчивый рост капитала и высокий спрос на аренду элитной недвижимости. Хорошо оборудованная вилла с одной спальней и бассейном предлагает отличную ликвидность, привлекательную доходность и долгосрочное повышение стоимости.
📍 Дополнительная информация:
Вилла является частью нового проекта, что дает ранним покупателям стратегическое преимущество в одном из самых привлекательных районов Бали. Всего в нескольких минутах езды на скутере вы найдете местные рынки, пляжи мирового класса и такие знаковые достопримечательности, как храм Улувату. Пока идет строительство, приобретая эту виллу сейчас, вы обеспечиваете себе значительный рост стоимости после завершения строительства.
📲 Готовы стать владельцем этого уединенного места в Улувату? Оставьте заявку на нашем сайте или свяжитесь с нами через WhatsApp-Мы расскажем все подробности и поможем вам сделать следующий шаг.













