Эксклюзивная вилла с 2 спальнями и двумя бассейнами
🏡 Общая информация
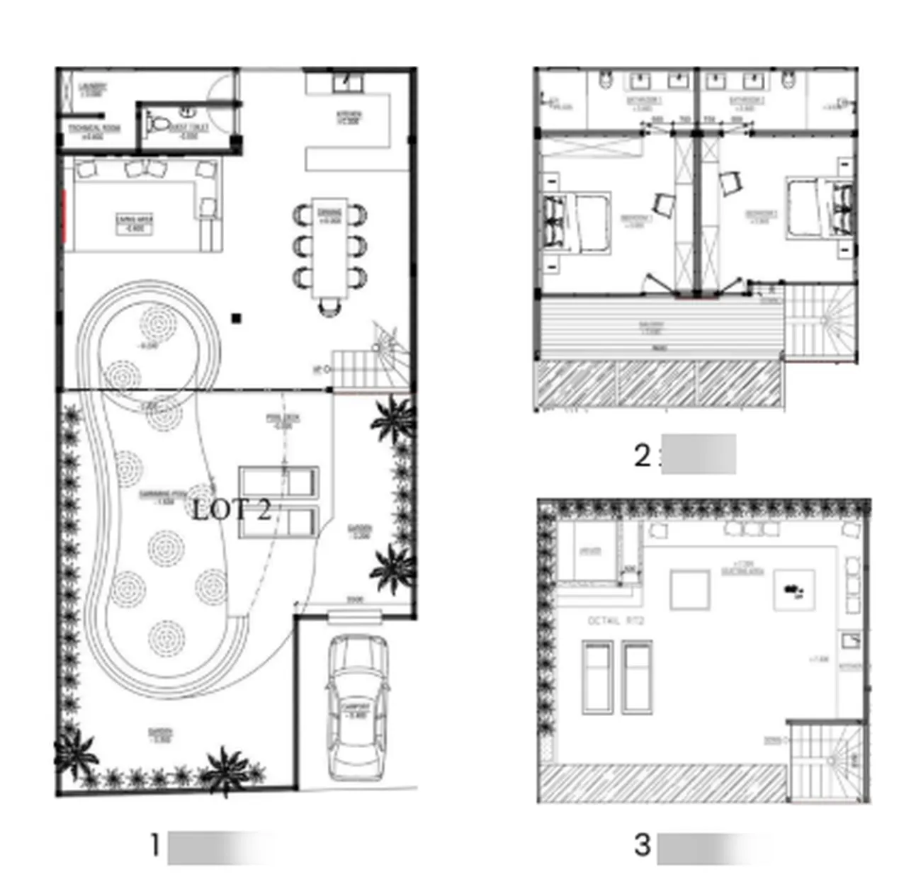
Представляем необыкновенную виллу с двумя спальнями, которая максимально увеличивает роскошь жизни благодаря инновационному трехэтажному дизайну и редкой привилегии двух частных бассейнов. Эта резиденция общей площадью 250 кв. м, расположенная на земельном участке площадью 200 кв. м, предлагает просторную жизнь внутри и снаружи на нескольких продуманных уровнях. Часть эксклюзивного проекта AQUAMARINE I, она расположена в Канггу - самом оживленном прибрежном районе Бали, всемирно известном своими легендарными волнами для серфинга, модными кафе, бутиками, видами на рисовые террасы и захватывающими дух закатами.
📐 Макет и премиум-функции
Трехэтажный дизайн виллы создает отдельные зоны для жизни, сна и развлечений:
Первый этаж:
🛋 Просторная гостиная и столовая открытой планировки, плавно переходящая в открытую зону - идеальное место для отдыха и развлечений;
🍳 Современная, полностью оборудованная кухня с качественной техникой и большим пространством для столов;
🚻 Удобная гостевая ванная комната;
🌿 Прямой доступ к главному бассейну и тропическому саду.
Первый этаж:
🛏 Две просторные спальни, каждая из которых предлагает спокойное уединение с обилием естественного света и встроенными системами хранения;
🚿 Две современные ванные комнаты (включая ванную комнату в главной спальне), отделанные по стандартам премиум-класса;
👗 Шкафы-купе, обеспечивающие исключительное пространство для хранения;
🌅 Частные балконы, с которых дует прохладный океанский бриз и открываются прекрасные виды.
Верхний этаж/уровень крыши:
🏝 Дополнительная гостиная или место для развлечений с панорамным видом на пышный ландшафт Канггу.
Рай под открытым небом:
🏊♀️ Потрясающий главный бассейн, окруженный шезлонгами, залитыми солнцем;
🏊 Второй частный бассейн - редкая особенность, обеспечивающая максимальную гибкость для релаксации;
🌺 Пышный тропический ландшафт создаст ваш частный оазис;
🚗 Охраняемая парковка на территории виллы.
Большие окна обеспечивают обилие естественного света и прохладный океанский бриз. Отделка премиум-класса обеспечивает долговечность в условиях тропического климата, сохраняя при этом элегантную современную эстетику. Продуманный трехэтажный дизайн обеспечивает приватность между жилыми и спальными зонами.
👨👩👧 Идеально подходит для
👪 Небольшие семьи, стремящиеся к роскоши - Просторная планировка виллы на трех этажах позволяет найти место для каждого. Дети будут в восторге от двух бассейнов, а родители оценят отдельные жилые зоны и гардеробные. В Канггу есть несколько отличных международных школ (включая Canggu Community School и Montessori School Bali), расположенных в шаговой доступности, что делает этот район идеальным для долгосрочного семейного проживания.
🏄♂️ Серфингисты, цифровые кочевники и взыскательные путешественники - Расположенный в нескольких минутах от легендарных пляжей Канггу (Echo Beach, Batu Bolong, Berawa) и знаменитых пляжных клубов (La Brisa, The Lawn, Finns), отель идеально подходит для того, чтобы насладиться лучшими впечатлениями от Бали. После нескольких дней приключений вернитесь в свое частное убежище с редкой роскошью - двумя бассейнами.
📈 Инвесторы, стремящиеся к исключительной доходности - Виллы с двумя бассейнами в лучших районах Канггу представляют собой весьма востребованный сегмент рынка аренды элитной недвижимости на Бали, предлагая премиальные ночные тарифы для пар и небольших групп, ищущих что-то особенное. Постоянно высокий туристический спрос в Канггу и ограниченное предложение качественных вилл с двумя бассейнами обеспечивают высокую заполняемость и отличный потенциал роста капитала.
📍 Дополнительные детали
Вилла занимает выгодное положение в охраняемом комплексе AQUAMARINE I, обеспечивая уединение и чувство общности. Окружающая инфраструктура соответствует мировому уровню:
🏖 Пляжи Канггу (Эхо, Бату Болонг, Берава) всего в нескольких минутах езды;
🍴 Кафе, рестораны и пляжные клубы мирового класса в шаговой доступности;
🛒 Местные магазины, супермаркеты (Pepito) и бутики поблизости;
🏫 Доступны международные школы и медицинские учреждения;
✈️ Международный аэропорт Нгурах-Рай находится примерно в 45 минутах езды.
Все, что вам нужно для идеального образа жизни в Канггу, находится прямо у вашего порога: серфинг мирового класса, яркая культура, исключительные рестораны и спокойная тропическая жизнь на вилле с редкой роскошью двух бассейнов.
Это не просто вилла - это эксклюзивное место отдыха. Великолепная трехэтажная резиденция, где двойные бассейны, гардеробные и изысканный дизайн объединяются, чтобы создать ваш частный рай в Канггу.
Готовы стать владельцем этой эксклюзивной виллы в Канггу? Просто оставьте заявку на нашем сайте или отправьте нам сообщение в WhatsApp - мы предоставим полную презентацию с поэтажными планами, ценами и эксклюзивными инвестиционными возможностями для этой замечательной недвижимости! 🌊🏝️✨













